









$835,000
MLS #:
SR26033822
Beds:
2
Baths:
1
Sq. Ft.:
806
Lot Size:
0.10 Acres - 4,384 Sq Ft
Yr. Built:
1949
Type:
Single Family
Single Family Residence
Area:
ENC - Encino
Address:
5725 Enfield Avenue
Encino, CA 91316
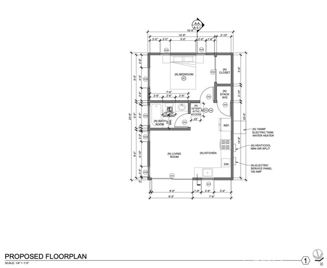
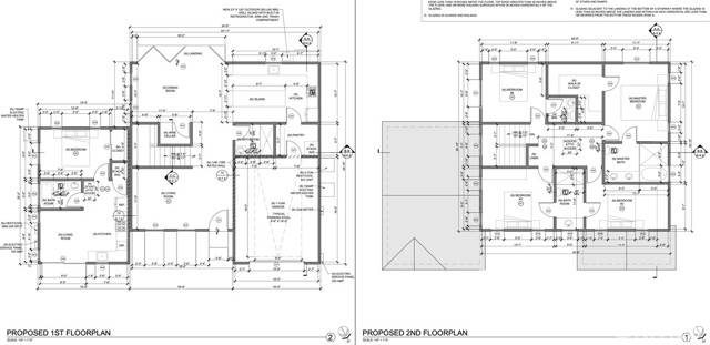
Calling all developers and investors—this is a rare, shovel-ready opportunity at 5725 Enfield Ave, featuring a flat 9,549 sq ft lot already subdivided into two parcels with approved plans to build a total of four units. Parcel A (5725 N Enfield Ave) offers approved plans for a 4-bedroom, 3.5-bath single-family home with approximately 1,992 sq ft and a 1-car attached garage, along with a separately permitted detached ADU at 5725 ½ N Enfield Ave featuring 1 bedroom, 1 bathroom, and 417 sq ft on a 4,384 sq ft lot. Parcel B (5727 Enfield Ave) is a vacant lot with approved plans for another 4-bedroom, 3.5-bath single-family residence of approximately 1,992 sq ft with a 1-car attached garage, plus an attached 1-bedroom, 1-bath ADU at 5727½ N Enfield Ave, totaling 5,151 sq ft. This fully entitled project allows a developer to skip the lengthy approval process and move straight into construction, offering excellent upside through new construction, ADU income potential, or resale, making it an exceptional investment in an established Valley neighborhood. This property will be sold with 5727 Enfield Ave. to one buyer - must purchase both parcels.
Exterior Features:
Curbs
Lot 6500-9999
Sidewalks
Street Lights
Utilities:
Public Sewer
Listing offered by:
Darren Shack - License# 01930725 with Pinnacle Estate Properties, Inc. - .
Tamara Tambe - License# 01793556 with Pinnacle Estate Properties, Inc. - .
Map of Location:
Data Source:
Listing data provided courtesy of: California Regional MLS (CRMLS) (Data last refreshed: 02/16/26 8:43pm)
- 3
Notice & Disclaimer: All listing data provided at this website (including IDX data and property information) is provided exclusively for consumers' personal, non-commercial use and may not be used for any purpose other than to identify prospective properties consumers may be interested in purchasing. All information is deemed reliable but is not guaranteed to be accurate. All measurements (including square footage) should be independently verified by the buyer.
Notice & Disclaimer: All listing data provided at this website (including IDX data and property information) is provided exclusively for consumers' personal, non-commercial use and may not be used for any purpose other than to identify prospective properties consumers may be interested in purchasing. All information is deemed reliable but is not guaranteed to be accurate. All measurements (including square footage) should be independently verified by the buyer.
More Information
For Help Call Us!
We will be glad to help you with any of your real estate needs.(760) 600-7628
Mortgage Calculator
%
%
Down Payment: $
Mo. Payment: $
Calculations are estimated and do not include taxes and insurance. Contact your agent or mortgage lender for additional loan programs and options.
Send To Friend